COST 231 Walfisch-Ikegami Model
This is an empirical model as described in COST 231 (extended Walfisch-Ikegami-model) which takes into account several parameters out of the vertical building profile for the path loss prediction.
This model features a very short computation time. The accuracy is tolerable, but it does not reach the one of deterministic ray optical models. This model does not consider wave-guiding effects which occur for example in street canyons. However, if the dominant propagation mechanism is the over rooftop propagation the results are far accurate as the empirical formulas approximate the multiple diffractions over the rooftops of the buildings. Therefore this model is well suited for transmitters located above the medium rooftop level, while the accuracy for transmitters below the medium rooftop level is limited.
However, their prediction accuracy is limited due to the fact that only a small number of parameters is taken into account and the influence of the distance from the transmitter is over-emphasized. Additionally, wave guiding effects in streets cannot be considered with an empirical approach. The empirical model implemented in ProMan was developed in the course of the European COST 231 project by a combination of the Walfisch and Ikegami models.
Computation
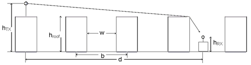
- height of transmitter
- height of receiver
- mean value of building heights
- mean value of widths of roads
- mean value of building separation
- road orientation with respect to the direct radio path

However this model is still statistical and not deterministic because only characteristic values are taken into account for the prediction. The model distinguishes between line-of-sight (LOS) and non-line-of-sight (NLOS) situations. In the LOS case – between base station and mobile antenna within a street canyon – a simple propagation loss formula different from free space loss is applied. The calibration of this formula is done by measurements performed in European cities.
The model has also been accepted by the ITU-R and is included in report 567-4. The estimation of path loss agrees rather well with measurements for base station antenna heights above rooftop level. The mean error is in the range of 3 dB and the standard deviation 4-8 dB. However, the prediction error becomes larger for close to compared to situations where . Furthermore the performance of the model is poor for . The parameters and are not considered in a physically meaningful way for micro cells. Therefore, the prediction error for micro cells may be quite large. The model does not consider multipath propagation and as a result wave guiding effects as occurring for example in street canyons are not taken into account. But in situations where the propagation over the rooftops is dominant the model leads to good results.
Because of the calibration with measurements from European cities no parameters have to be adjusted when using this model. However with this empirical approach it is not possible to predict the wideband properties of the mobile radio channel as for example the delay spread or impulse response.
Additional Features
WinProp extended the empirical COST 231 Model for combined network planning (CNP). This extension allows the combination of urban and indoor predictions. In the urban environment the prediction is computed with the COST 231 Model, as described above. For the prediction of pixels located within a building, the computation is done in two steps. First, the signal level of the indoor pixel is computed without consideration of the building, which surrounds the pixel under evaluation, using the empirical COST 231 model. After that, the occurring indoor loss along the path section running within the building, is added to take into account the additional attenuation caused by the building penetration.
