SS-V:2060 ピン接合クロスの面内振動

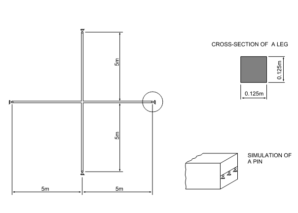
テスト番号VM07 両端がピン接合のクロスの最初の8個の固有周波数を求めます。

定義

1.


ピンは、直線に適用されるゼロ変位を介してシミュレートされます。クロスの前面は、面外変位によって固定されます。

単位はSIです。

材料特性は以下の通りです:
特性
弾性係数
2e+11 N/m2
ポアソン比
0.3
質量密度
8000 kg/m3

結果

以下の表は、モードをまとめたものです。
基準解 SimSolid %差異
モード1 [Hz] 11.336 11.316 -0.18%
モード2 [Hz] 17.709 17.813 0.59%
モード3 [Hz] 17.709 17.842 0.75%
モード4 [Hz] 17.709 17.843 0.76%
モード5 [Hz] 45.345 45.126 -0.48%
モード6 [Hz] 57.390 57.364 -0.05%
モード7 [Hz] 57.390 57.366 -0.04%
モード8 [Hz] 57.390 57.546 0.27%
1 NAFEMS, SBNFA (November 1987), Test 1.